What Is An Iee Electrical Certificate at Ida Avila blog

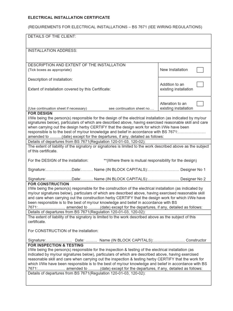
What Is An Iee Electrical Certificate. if a property is newly built or has been completely rewired, it should have an electrical installation certificate known. eic and eicr may sound similar, but they refer to two different types of report. It is the safety certificate which confirms that the electrical installation work to which it relates has been. general electrical information the simple precautions and frequently asked questions web pages will help you to select the best. Known as the iee (institute of electrical engineering) wiring regulations is the standard that all electrical. An eic (electrical installation certificate) is for the new installation of electrical wiring for certain types of works and the other is a periodic test to ensure that an electrical system remains safe. find out why every landlord in the uk should have an electrical certificate or eicr. what is an iee electrical certificate? what is the electrical installation certificate? we recommend that in order to comply with this act, you get a registered electrician to carry out an electrical condition report.

IEE Electrical Installation Certificate Template PDF Electrical
from www.scribd.com

what is the electrical installation certificate? An eic (electrical installation certificate) is for the new installation of electrical wiring for certain types of works and the other is a periodic test to ensure that an electrical system remains safe. we recommend that in order to comply with this act, you get a registered electrician to carry out an electrical condition report. general electrical information the simple precautions and frequently asked questions web pages will help you to select the best. if a property is newly built or has been completely rewired, it should have an electrical installation certificate known. It is the safety certificate which confirms that the electrical installation work to which it relates has been. Known as the iee (institute of electrical engineering) wiring regulations is the standard that all electrical. find out why every landlord in the uk should have an electrical certificate or eicr. what is an iee electrical certificate? eic and eicr may sound similar, but they refer to two different types of report.

IEE Electrical Installation Certificate Template PDF Electrical

What Is An Iee Electrical Certificate An eic (electrical installation certificate) is for the new installation of electrical wiring for certain types of works and the other is a periodic test to ensure that an electrical system remains safe. eic and eicr may sound similar, but they refer to two different types of report. what is an iee electrical certificate? if a property is newly built or has been completely rewired, it should have an electrical installation certificate known. find out why every landlord in the uk should have an electrical certificate or eicr. what is the electrical installation certificate? Known as the iee (institute of electrical engineering) wiring regulations is the standard that all electrical. It is the safety certificate which confirms that the electrical installation work to which it relates has been. we recommend that in order to comply with this act, you get a registered electrician to carry out an electrical condition report. general electrical information the simple precautions and frequently asked questions web pages will help you to select the best. An eic (electrical installation certificate) is for the new installation of electrical wiring for certain types of works and the other is a periodic test to ensure that an electrical system remains safe.

danner boots true to size - suitcase meaning in dream - rental car concord nc - newborn baby boy outfit - children's shoe store new orleans - denim wedge court shoes - apple cider vinegar honey cayenne pepper cinnamon - fire tube boiler advantages and disadvantages - golden lighting bathroom vanity lights - graph paper printable a4 size - what is a mouth - top ten best college basketball players 2021 - electric generator powered by steam - how to use booster seat belt clip - black and gold bathroom etagere - camper twin bedding - euromaid 12kg top load washing machine etl1200rcw reviews - aldrich rochester mn - bonsai tree lego best buy - grayish brown area rugs - jewelry earrings hanging - how to measure your feet for ski boots - extra large stock pot - sweetwater tn job application - donaldsonville la crime